カテゴリ:お勧め物件
- 価格
- --
- 中古戸建
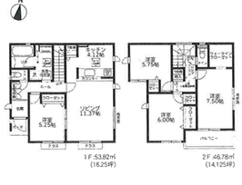
- 間取
- 6LDK
|
|
- 所在地
- 神奈川県厚木市 森の里四丁目 リノベーション戸建
- 交通
- 小田急小田原線愛甲石田駅
バス(厚木西高校 乗22分 停歩4分)
小田急小田原線本厚木駅
バス(厚木西高校 乗40分 停歩4分)
|
|
|
| 築年月 | 1990/07 | 構造 | 木造 |
| 階建 | 地上 2階 | 部屋階数 | |
| 面積 | 土地 286.29m² | 建蔽率/容積率 | 50% / 100% |
| 物件番号 | uh25062401 | 掲載期限日 | 2025/11/10 |
| 設備・条件 | リノベーション ガスコンロ 三口コンロ システムキッチン 給湯 独立洗面台 シャワー ユニットバス 温水洗浄便座 床下収納 TVドアホン 都市ガス 公営水道 排水下水 駐車場有 司法書士は売主指定 森の里地区計画区域 森の里4丁目建築協定あり 容積率80%(森の里建築協定による) |
||
- 価格
- --
- 中古戸建
- 間取
- 6LDK
|
|
- 所在地
- 神奈川県厚木市 森の里四丁目 森の里四丁目中古
- 交通
- 小田急小田原線愛甲石田駅
バス(森の里5丁目 乗23分 停歩6分)
小田急小田原線本厚木駅
バス(森の里中学 乗28分 停歩3分)
|
|
|
| 築年月 | 1989/09 | 構造 | 軽量鉄骨 |
| 階建 | 地上 2階 | 部屋階数 | |
| 面積 | 土地 262.50m² | 建蔽率/容積率 | 50% / 80% |
| 物件番号 | uh25061201 | 掲載期限日 | 2025/11/10 |
| 設備・条件 | リノベーション ガスコンロ 三口コンロ システムキッチン 給湯 独立洗面台 都市ガス 公営水道 排水下水 駐車場有 フルリフォーム中 2025年6月完成予定 厚木市森の里地区計画 森の里4丁目建築協定 |
||
- 価格
- 2,480万円
- 中古戸建
- 間取
- 5LDK
|
|
- 所在地
- 神奈川県厚木市 森の里4丁目 4丁目中古戸建
- 交通
- 小田急小田原線本厚木駅
バス(森の里中学校前 乗28分 停歩3分)
小田急小田原線愛甲石田駅
バス(森の里中学校前 乗24分)
|
|
|
| 築年月 | 1990/09 | 構造 | 木造 |
| 階建 | 地上 2階 | 部屋階数 | |
| 面積 | 210.00m² 土地 210.00m² | 建蔽率/容積率 | 50% / 80% |
| 物件番号 | uh25061202 | 掲載期限日 | 2025/11/10 |
| 設備・条件 | ガスコンロ 三口コンロ システムキッチン 給湯 独立洗面台 バス・トイレ別 室内洗濯機置き場 都市ガス 公営水道 排水下水 駐車場有 森の里地区計画 森の里4丁目建築協定 |
||
- 価格
- 2,399万円
- 中古戸建
- 間取
- 5LDK
|
|
- 所在地
- 神奈川県厚木市 毛利台2丁目 中古戸建
- 交通
- 小田急小田原線本厚木駅
バス(観音坂 乗16分 停歩7分)
|
|
|
| 築年月 | 1989/01 | 構造 | 木造 |
| 階建 | 地上 2階 | 部屋階数 | |
| 面積 | 土地 229.42m² | 建蔽率/容積率 | 50% / 100% |
| 物件番号 | uh25092401 | 掲載期限日 | 2025/11/10 |
| 設備・条件 | 角地 ガスコンロ 三口コンロ システムキッチン 追い焚き 洗髪洗面化粧台 ユニットバス 温水洗浄便座 床下収納 TVドアホン 都市ガス 公営水道 排水下水 駐車場有 2017年屋根・玄関塗装・外壁コーキング 法22条区域 建築協定あり |
||
- 価格
- --
- 中古戸建
- 間取
- 5LDK
|
|
- 所在地
- 神奈川県厚木市 森の里2丁目 リノベーション戸建
- 交通
- 小田急小田原線本厚木駅
バス(若宮橋 乗20分 停歩12分)
小田急小田原線愛甲石田駅
バス(若宮橋 乗15分 停歩12分)
|
|
|
| 築年月 | 1988/12 | 構造 | 木造 |
| 階建 | 地上 2階 | 部屋階数 | |
| 面積 | 土地 216.17m² | 建蔽率/容積率 | 50% / 100% |
| 区画番号 | 1棟 | 現況 | 空家 |
| 物件番号 | uh25051201 | 掲載期限日 | 2025/11/10 |
| 設備・条件 | リノベーション ガスコンロ 三口コンロ システムキッチン カウンターキッチン 給湯 洗髪洗面化粧台 独立洗面台 シャワー ユニットバス バス・トイレ別 温水洗浄便座 床下収納 W.INクローゼット 都市ガス 公営水道 排水下水 駐車場有 バルコニー フローリング ※制限その他:地区計画区域 ※その他条件:司法書士は売主指定、決済は契約から1ヵ月。家具・小物・スタンドライト・シーリングライトは販売対象外 |
||
- 価格
- 4,080万円
- 新築戸建
- 間取
- 4SLDK
|
|
- 所在地
- 神奈川県伊勢原市 沼目4丁目 沼目新築分譲
- 交通
- 小田急小田原線伊勢原駅
バス(沼目 乗6分 停歩1分)
|
|
|
| 築年月 | 2025/04 | 構造 | 木造 |
| 階建 | 地上 2階 | 部屋階数 | |
| 面積 | 土地 156.50m² | 建蔽率/容積率 | 50% / 100% |
| 区画番号 | 1号棟 | 現況 | |
| 物件番号 | nh25072201 | 掲載期限日 | 2025/11/10 |
| 設備・条件 | ガスコンロ 三口コンロ 給湯 独立洗面台 温水洗浄便座 プロパンガス 公営水道 排水下水 駐車場有 建築確認番号:第KBI-SGM24-10-4601号 フラット35S金利Aプラン利用の場合は適合証明が別途掛かります。S=納戸 |
||
- 価格
- 3,430万円
- 中古戸建
- 間取
- 4SLDK
|
|
- 所在地
- 神奈川県厚木市 森の里5丁目 中古戸建
- 交通
- 小田急小田原線愛甲石田駅
バス(森の里 乗18分 停歩3分)
小田急小田原線本厚木駅
バス(森の里 乗27分 停歩3分)
|
|
|
| 築年月 | 1994/02 | 構造 | 軽量鉄骨 |
| 階建 | 地上 2階 | 部屋階数 | |
| 面積 | 土地 256.18m² | 建蔽率/容積率 | 50% / 80% |
| 区画番号 | 1棟 | 現況 | 空家 |
| 物件番号 | uh25041701 | 掲載期限日 | 2025/11/10 |
| 設備・条件 | ガスコンロ 三口コンロ システムキッチン 食器洗い乾燥機 給湯 追い焚き 洗髪洗面化粧台 独立洗面台 シャワー ユニットバス バス・トイレ別 温水洗浄便座 床暖房 床下収納 都市ガス 公営水道 排水下水 駐車場有 バルコニー フローリング 二世帯住宅 ※厚木市森の里地区地区計画により、 建ぺい率:50% 容積率80%に制限されます。 ※防火地域:準防火地域 ※土地区画整理事業: 計画無 ※「その他法令上の制限:景観法、厚木森の里築計画区域、森の里5丁目建築協定 |
||
- 価格
- 2,980万円
- 新築戸建
- 間取
- 4SLDK
|
|
- 所在地
- 神奈川県厚木市 上依知 2期
- 交通
- 小田急小田原線本厚木駅
バス(藤塚 乗30分 停歩7分)
|
|
|
| 築年月 | 2025/09 | 構造 | 木造 |
| 階建 | 地上 2階 | 部屋階数 | |
| 面積 | 土地 137.05m² | 建蔽率/容積率 | 60% / 200% |
| 物件番号 | nh25070901 | 掲載期限日 | 2025/11/10 |
| 設備・条件 | ガスコンロ 三口コンロ システムキッチン カウンターキッチン 給湯 独立洗面台 ユニットバス 温水洗浄便座 W.INクローゼット プロパンガス 公営水道 排水下水 駐車場有 建築確認番号:第KBI-YKH24-10-3384号 長期優良住宅認定物件 フラット35利用の場合は適合証明発行費用が別途掛かります。WIC・SIC |
||
- 価格
- --
- 中古戸建
- 間取
- 4SLDK
|
|
- 所在地
- 神奈川県厚木市 まつかげ台 中古戸建住宅
- 交通
- 小田急小田原線本厚木駅
バス(まつかげ台 乗33分 停歩2分)
|
|
|
| 築年月 | 2010/08 | 構造 | 木造 |
| 階建 | 地上 2階 | 部屋階数 | |
| 面積 | 土地 178.48m² | 建蔽率/容積率 | 50% / 100% |
| 区画番号 | 現況 | 空家 | |
| 物件番号 | um25053104 | 掲載期限日 | 2025/11/10 |
| 設備・条件 | ガスコンロ 三口コンロ システムキッチン カウンターキッチン 給湯 独立洗面台 シャワー ユニットバス バス・トイレ別 W.INクローゼット 都市ガス 公営水道 排水下水 駐車場有 バルコニー フローリング 2023年5月外壁・屋根塗装工事済 |
||
- 価格
- 2,980万円
- 新築戸建
- 間取
- 4LDK
|
|
- 所在地
- 神奈川県伊勢原市 下糟屋 第9
- 交通
- 小田急小田原線伊勢原駅
バス(中沢中学校前 乗11分 停歩6分)
|
|
|
| 築年月 | 2025/09 | 構造 | |
| 階建 | 地上 2階 | 部屋階数 | |
| 面積 | 建蔽率/容積率 | 50% / 100% | |
| 区画番号 | 6号棟 | 現況 | |
| 物件番号 | nh25082701 | 掲載期限日 | 2025/11/10 |
| 設備・条件 | ガスコンロ 三口コンロ システムキッチン カウンターキッチン 給湯 洗髪洗面化粧台 浴室乾燥機 温水洗浄便座 床下収納 W.INクローゼット TVドアホン 防犯カメラ 駐車場有 建築確認番号:第KBI-SGM25-10-1900号 フラット35S金利Aタイプ対応物件別途費用あり ※敷地内に電柱及び支線が入る場合があります。 ※法令制限/日影規制・文化財保護法・景観法/・建基法22条指定区域・絶対高さ10m 別途ルーフバルコニー5.67㎡あり |
||
- 価格
- 2,180万円
- 中古戸建
- 間取
- 4LDK
|
|
- 所在地
- 神奈川県伊勢原市 坪ノ内 中古戸建
- 交通
- 小田急小田原線鶴巻温泉駅
バス(串橋入口 乗7分 停歩6分)
|
|
|
| 築年月 | 1985/11 | 構造 | 木造 |
| 階建 | 地上 2階 | 部屋階数 | 2階 |
| 面積 | 152.10m² 土地 152.10m² | 建蔽率/容積率 | 60% / 200% |
| 区画番号 | 現況 | 空家 | |
| 物件番号 | uh25011402 | 掲載期限日 | 2025/11/10 |
| 設備・条件 | ガスコンロ 二口コンロ システムキッチン 給湯 洗髪洗面化粧台 シャワー ユニットバス バス・トイレ別 プロパンガス 公営水道 排水下水 駐車場有 フローリング ※準防火地域 ※位置指定道路部分[31.60㎡]持分1/4 |
||
- 価格
- 2,999万円
- 中古戸建
- 間取
- 4LDK
|
|
- 所在地
- 神奈川県厚木市 みはる野2丁目 リフォーム戸建
- 交通
- 小田急小田原線本厚木駅
バス(みはる野一丁目 乗32分 停歩3分)
|
|
|
| 築年月 | 2003/10 | 構造 | 木造 |
| 階建 | 地上 2階 | 部屋階数 | |
| 面積 | 土地 158.42m² | 建蔽率/容積率 | 50% / 100% |
| 物件番号 | uh25102302 | 掲載期限日 | 2025/11/10 |
| 設備・条件 | リノベーション ガスコンロ 三口コンロ システムキッチン カウンターキッチン 給湯 独立洗面台 シャワー ユニットバス 温水洗浄便座 床下収納 W.INクローゼット 都市ガス 公営水道 排水下水 駐車場有 ウッドデッキ・サンルーム付 司法書士・電気会社は売主指定 2025年12月リフォーム完了予定 エアコン設置(リビング用) 給湯器交換 |
||
- 価格
- --
- 新築戸建
- 間取
- 4LDK
|
|
- 所在地
- 神奈川県伊勢原市 下落合 長期優良住宅
- 交通
- 小田急小田原線愛甲石田駅 徒歩30分
小田急小田原線愛甲石田駅
バス(下落合 乗15分 停歩7分)
|
|
|
| 築年月 | 2025/10 | 構造 | 木造 |
| 階建 | 地上 2階 | 部屋階数 | |
| 面積 | 土地 174.69m² | 建蔽率/容積率 | 60% / 200% |
| 区画番号 | 1号棟 | 現況 | 未完成 |
| 物件番号 | nh25090202 | 掲載期限日 | 2025/11/10 |
| 設備・条件 | 角地 ガスコンロ 三口コンロ システムキッチン カウンターキッチン 給湯 追い焚き 洗髪洗面化粧台 シャワー 浴室乾燥機 温水洗浄便座 TVドアホン プロパンガス 公営水道 排水下水 駐車場有 建築確認番号:第HPA‐25‐06649‐1号 太陽光パネル標準装備 フラット35S利用の場合は適合証明取得費用93,500円(税込)が掛かります。司法書士・土地家屋調査士は売主指定 |
||
- 価格
- 2,980万円
- 中古戸建
- 間取
- 4LDK
|
|
- 所在地
- 神奈川県海老名市 門沢橋2丁目 中古戸建
- 交通
- JR相模線門沢橋駅 徒歩7分
|
|
|
| 築年月 | 2014/03 | 構造 | 鉄骨造 |
| 階建 | 地下 3階 | 部屋階数 | |
| 面積 | 土地 66.01m² | 建蔽率/容積率 | 60% / 200% |
| 区画番号 | 現況 | 居住中 | |
| 物件番号 | uh25041001 | 掲載期限日 | 2025/11/10 |
| 設備・条件 | ガスコンロ 三口コンロ システムキッチン カウンターキッチン 給湯 シャワー ユニットバス バス・トイレ別 W.INクローゼット プロパンガス 公営水道 排水下水 駐車場有 バルコニー フローリング オール電化 他の制限:準防火地域、景観法、海老名市立地適正化計画、神奈川県屋外広告物条例 ※売買対象地の北側一部(地番:746番29 (9.01㎡)について高圧送電線の地役権設定があり、その部分については建築物等の建築は不可です。 ※敷地東南部に、コンパクトカー等駐車可能です。(車種によります) ※敷地内南東角に電柱が存在しますが、現況渡しとなります。 ※南側私道持分92㎡の1/9。なお、建築基準法外道路です。 |
||
- 価格
- 3,490万円
- 新築戸建
- 間取
- 4LDK
|
|
- 所在地
- 神奈川県厚木市 妻田東2丁目 妻田東2丁目
- 交通
- 小田急小田原線本厚木駅
バス(妻田 乗6分 停歩6分)
|
|
|
| 築年月 | 2024/03 | 構造 | 木造 |
| 階建 | 地上 2階 | 部屋階数 | 2階 |
| 面積 | 土地 120.18m² | 建蔽率/容積率 | 60% / 200% |
| 区画番号 | 1号棟 | 現況 | 空家 |
| 物件番号 | nh25013001 | 掲載期限日 | 2025/11/10 |
| 設備・条件 | ガスコンロ 三口コンロ システムキッチン カウンターキッチン 給湯 洗髪洗面化粧台 シャワー 浴室乾燥機 ユニットバス バス・トイレ別 温水洗浄便座 床下収納 TVドアホン プロパンガス 公営水道 排水下水 駐車場有 バルコニー 建築確認番号:第R06SHC124089号 ※フラット35S利用可(別途費用88000) ※宅地内に電柱及び支線が入る場合があります。 ※司法書士は当社指定となります。 ※全棟が長期優良住宅対象物件です。
|
||
- 価格
- 2,580万円
- 新築戸建
- 間取
- 4LDK
|
|
- 所在地
- 神奈川県愛甲郡愛川町 中津 第134
- 交通
- 小田急小田原線本厚木駅
バス(春日台1丁目 乗36分 停歩3分)
小田急小田原線海老名駅
バス(春日台1丁目 乗37分 停歩3分)
|
|
|
| 築年月 | 構造 | 木造 | |
| 階建 | 地上 2階 | 部屋階数 | |
| 面積 | 土地 118.22m² | 建蔽率/容積率 | 60% / 200% |
| 区画番号 | 4号棟 | 現況 | |
| 物件番号 | nh25063001 | 掲載期限日 | 2025/11/10 |
| 設備・条件 | ガスコンロ 三口コンロ システムキッチン カウンターキッチン 給湯 独立洗面台 シャワー ユニットバス 温水洗浄便座 床下収納 W.INクローゼット TVドアホン プロパンガス 公営水道 排水下水 駐車場有 住宅性能評価書 建築確認番号:第KBI-SGM25-10-3212号 フラット35利用の場合は適合証明取得費用が別途かかります。 |
||
- 価格
- --
- 新築戸建
- 間取
- 4LDK
|
|
- 所在地
- 神奈川県厚木市 妻田東3丁目 2期
- 交通
- 小田急小田原線本厚木駅
バス(妻田 乗8分 停歩5分)
|
|
|
| 築年月 | 2025/05 | 構造 | 木造 |
| 階建 | 地上 2階 | 部屋階数 | |
| 面積 | 土地 106.32m² | 建蔽率/容積率 | 60% / 200% |
| 区画番号 | 2号棟 | 現況 | |
| 物件番号 | nh25070101 | 掲載期限日 | 2025/11/10 |
| 設備・条件 | ガスコンロ 三口コンロ システムキッチン カウンターキッチン 給湯 独立洗面台 浴室乾燥機 ユニットバス 温水洗浄便座 床下収納 TVドアホン 都市ガス 公営水道 排水下水 駐車場有 駐輪場 バルコニー フローリング 建築確認番号:第2024SBC-確01432M号 住宅ローン減税利用の場合住宅エネルギー性能証明書取得費用55000円(税込)フラット35利用の場合は適合証明取得費用132000円(税込)が掛かります。 |
||
- 価格
- 2,299万円
- 中古戸建
- 間取
- 4LDK
|
|
- 所在地
- 神奈川県厚木市 上荻野 上荻野戸建
- 交通
- 小田急小田原線本厚木駅
バス(泉 乗30分 停歩3分)
|
|
|
| 築年月 | 2000/01 | 構造 | 木造 |
| 階建 | 地上 2階 | 部屋階数 | |
| 面積 | 土地 133.03m² | 建蔽率/容積率 | 50% / 100% |
| 物件番号 | uh25091701 | 掲載期限日 | 2025/11/10 |
| 設備・条件 | リノベーション ガスコンロ 三口コンロ システムキッチン 食器洗い乾燥機 給湯 追い焚き 独立洗面台 シャワー 浴室乾燥機 ユニットバス 温水洗浄便座 床下収納 W.INクローゼット プロパンガス 公営水道 排水下水 駐車場有 | ||

価格
間取






































