【新築戸建】厚木市愛甲西2丁目[新築分譲全2棟]2号棟◇3LDK+パントリー!駐車2台!
up

価格
ご成約済
新築戸建
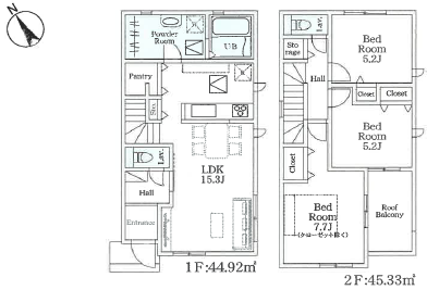
間取
3LDK

所在地 神奈川県厚木市愛甲西2丁目  2丁目1期
交通 小田急小田原線愛甲石田駅 徒歩1600m 徒歩22分
小田急小田原線愛甲石田駅
バス(上愛甲 乗7分 停歩3分)
築年月 2025/11 新築/中古
面積 計測方式
バルコニー 向き
建物階数 部屋階数
部屋/区画番号 2号棟 総戸/区画数 2棟
建物構造 木造
敷地全体面積 101.15m² 延べ床面積 91.08m²
間取内容 LDK16.0畳   洋室8.0畳   洋室7.0畳   洋室5.2畳   
駐車場  2台(車種による) 取引態様 仲介
引渡/入居時期 現況 未完成
地目 宅地 用途地域 第一種低層住居専
都市計画 市街化区域 地勢 平坦
土地面積 101.15m² 土地面積計測方式
建ぺい率 50% 容積率 100%
土地権利 所有権 接道状況 一方
接道方向1 南西 接道間口1
接道種別1 公道 接道幅員1 4.4m
周辺環境 愛甲小学校 玉川中学校
よろずや スギ薬局 クリエイト ローソン
設備・条件 三口コンロ システムキッチン カウンターキッチン 食器洗い乾燥機 追い焚き 洗髪洗面化粧台 浴室乾燥機 温水洗浄便座 床下収納 TVドアホン カードキーシステム 都市ガス 公営水道 排水下水 宅配ボックス 駐車場有 住宅性能評価書
建築確認番号:第KS125-3120-50805号 フラット35S利用の場合は適合証明取得費用88,000円が別途掛かります エコジョーズ 
物件番号 nh25102201 掲載期限日 2026/01/10

☆★☆仲介手数料0円です★☆★

アスシア・ホーム」では神奈川県内の新築一戸建てを仲介手数料無料でご紹介しております。削減できた費用は、家具・家電・お引越し費用等にご利用ください。下記ポータルサイト、住宅情報誌、他社様のHPなどからでも気になる物件をお知らせいただければ、仲介手数料無料でご紹介可能な物件かどうかをお調べの上、ご連絡いたします。046-210-6555

厚木市愛甲西2丁目[新築分譲全2棟] 2号棟《お勧めPoint!》

◎2025年11月完成予定の新築戸建!
◎全区画、土地面積101.15㎡
カースペース2台可!
◎家族が集まるLDKは広々16.0帖!
パントリーあり◇愛甲小学校・東名中学校区!◇

厚木市愛甲西2丁目[新築分譲2号棟]
価格 3,480万円 間取り 3LDK+パントリー
販売戸数 1戸 総戸数 全2戸
土地面積 101.15㎡ 建物面積 91.08㎡
道路 道路幅:南西側4.4m公道 完成済

2025年11月完成

長期優良住宅(減税・控除)

育児を応援する行政サービスガイド⇩ 

【新築戸建】厚木市愛甲西2丁目[新築分譲全2棟]2号棟◇3LDK+パントリー!駐車2台!LDK広々16.0帖!についてのお問い合わせは、平日 9時~18時(土・日・祝祭日定休)いつもで可能です。内覧につきましてはスタッフが現地をご案内しますので、お気軽にお問い合わせください。価格等、諸条件のご希望条件の交渉から購入のお申込み、ご契約条件の調整、売買契約、ローンをご利用される場合のローンのお申込みとローンのご契約、購入不動産の最終確認を行い、ご決済からお引渡しまでが滞りなく行われるようにサポートします。現地の見学希望・ご質問等は下記までお気軽にお問い合わせください。046-210-6555

物件リクエスト受付中!

Loading...
※地図上に表示される物件の位置は付近住所に所在することを表すものであり、実際の物件所在地とは異なる場合がございます。
※物件掲載内容と現況に相違がある場合は現況を優先と致します。


〒243-0123 神奈川県厚木市森の里青山14番1号
青山Avenue102  TEL 046-210-6555
営業時間 営業時間 9:00~18:00
宅地建物取引業 神奈川県知事(3)第29035号
株式会社アスカ・コーポレーション

※このフォームからの営業・売込みは一切お断りします。

    お問合せ区分(必須)
    物件を見たい物件の詳細を知りたい周辺環境について知りたい最新の情報を知りたい

    必須 お名前

    必須 メール

    任意郵便番号

    任意都道府県

    任意ご住所

    任意お電話番号

    必須メッセージ

     

    ■個人情報保護方針

    アスシア・ホーム(以下、当社)は~<個人情報の取扱いについて
    弊社は、個人情報保護に関する法令を遵守し、個人情報の適正な取扱いと保護に努めます。

    1.個人情報の利用目的
    お客様の個人情報は以下の目的のために利用させていただきます。
    なお、情報・サービスの提供は、ご本人から申出がありましたら、提供を停止します。
    ①不動産の売買、仲介、賃貸、管理等の取引に関する契約の履行、情報、サービスの提供
    ②住宅ローンに係る事務代行業務、不動産取引に係るローン業務に関する契約の履行、情報、サービスの提供。
    ③上記①、②の利用目的の達成に必要な範囲での、個人情報の第三者への提供。
    ④上記①、②の情報・サービス提供のための郵便物、電話、電子メール等による営業活動およびマーケティング(アンケートのお願い等)活動及び調査分析。

    2.個人情報の第三者提供
    お客様の個人情報は利用目的の達成のために、次の通り第三者に提供させていただきます。
    なお、お客様から第三者への提供の停止の申出がありましたら、提供は停止いたします。
    ・法令の規定に基づく場合。
    ・人の生命、身体、または財産の保護のため必要がある場合であって、ご本人の同意を得ることが困難であるとき。
    ・公衆衛生の向上または児童の健全な育成の推進のために特に必要がある場合であって、ご本人の同意を得ることが困難であるとき。
    ・国の機関もしくは地方公共団体またはその委託を受けた者が法令の定める事務を遂行することに対して協力する必要がある場合であって、ご本人の同意を得ることにより当該事務の遂行に支障を及ぼすおそれがあるとき。

    3.第三者への提供例
    ア)依頼を受けた事項について、契約の相手方となる者・その見込者、または他の不動産会社・広告掲載業者・団体、指定流通機構(貸主情報)
    イ)目的物件の管理会社、建物の管理組合、建物所有者など
    ウ)連帯保証会社、信販会社、損害保険・共済会社、信用情報機関、建築や営繕の施工会社、設備のメンテナンス会社、引越会社、住宅関連サービスなどを行う会社など
    エ)その他利用目的の達成に必要となる第三者
    オ)ホームページなどからのお問合わせ、依頼、登録への回答、連絡、資料の発送のため

    4.個人情報の安全管理
    当社は、取得した個人情報につきましては、漏えい、滅失またはき損の防止その他の個人情報の安全管理のため必要、かつ適切な措置を講じます。
    当社ホームページはSSLによる暗号化通信を利用しおります。
    httpsで始まるURLより送受信されるお客様の情報は、暗号化技術により保護されます。

    5.個人情報に関するお問い合わせ
    当社は、個人情報の開示等に関するお問い合わせおよび個人情報の取扱いに関する個人情報相談窓口を設置し、法令に従い遅滞なく合理的な範囲で対応いたします。
    ≪個人情報相談窓口≫
    株式会社アスカ・コーポレーション 不動産事業部 個人情報保護管理者
    TEL:046-250-0065
    受付時間 9:00~18:00(12月29日~1月4日を除く)>

    ※このページはSSL暗号化通信を採用(導入)していますのでお客様の情報の送信は安全に行っていただけます。