- 価格
- 3,690万円
- 新築戸建
- 間取
- 4LDK
|
|
| 所在地 | 神奈川県厚木市上落合 第1期 |
|---|---|
| 交通 | 小田急小田原線愛甲石田駅 徒歩1360m 徒歩17分 小田急小田原線愛甲石田駅 バス(堤下 乗9分 停歩2分) |
| 築年月 | 2026/01 | 新築/中古 | |
|---|---|---|---|
| 面積 | 計測方式 | ||
| バルコニー | 向き | ||
| 建物階数 | 地上2階 | 部屋階数 | |
| 部屋/区画番号 | 3号棟 | 総戸/区画数 | 3棟 |
| 建物構造 | 木造 | ||
| 敷地全体面積 | 120.99m² | 延べ床面積 | 100.61m² |
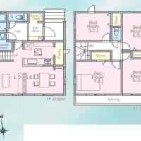
| 間取内容 |
LDK18.0畳 洋室7.8畳 洋室6.0畳 洋室6.0畳 洋室5.2畳 |
||
| 駐車場 | 並列2台(車種による) | 取引態様 | 仲介 |
| 引渡/入居時期 | 現況 | 未完成 | |
| 地目 | 宅地 | 用途地域 | 第一種中高層住居専用 |
| 都市計画 | 市街化区域 | 地勢 | 平坦 |
| 土地面積 | 120.99m² | 土地面積計測方式 | |
| 建ぺい率 | 60% | 容積率 | 200% |
| 土地権利 | 所有権 | 接道状況 | 角地 |
| 接道方向1 | 東 | 接道間口1 | |
| 接道種別1 | 公道 | 接道幅員1 | 5.6m |
| 接道方向2 | 北 | 接道間口2 | |
| 接道種別2 | 公道 | 接道幅員2 | 5.0m |
| 周辺環境 |
戸田小学校1650m 相川中学校1700m ビバモール セブンイレブン |
||
| 設備・条件 | 角地 ガスコンロ 三口コンロ システムキッチン カウンターキッチン 食器洗い乾燥機 給湯 独立洗面台 浴室乾燥機 ユニットバス 温水洗浄便座 床下収納 TVドアホン プロパンガス 公営水道 排水下水 宅配ボックス 駐車場有 住宅性能評価書 建築確認番号:第KSI25-3120-51207号 フラット35利用の場合は適合証明取得費用88,000円 長期優良住宅(減税・控除) |
||
| 物件番号 | nh25102301 | 掲載期限日 | 2026/01/10 |
☆★☆仲介手数料0円です★☆★
「アスシア・ホーム」では神奈川県内の新築一戸建てを仲介手数料無料でご紹介しております。削減できた費用は、家具・家電・お引越し費用等にご利用ください。下記ポータルサイト、住宅情報誌、他社様のHPなどからでも気になる物件をお知らせいただければ、仲介手数料無料でご紹介可能な物件かどうかをお調べの上、ご連絡いたします。046-210-6555

厚木市上落合第1期 3号棟 《お勧めPoint!》
◎2026年1月完成予定の新築戸建!
◎カースペース並列2
台可!
◎キッチンには有ると便利なパントリー!
◎家族が集まるLDKは広々18.0帖!
◎収納多数あり◇戸田小学校・相川中学校区!◇
| 厚木市上落合(全3区画・3棟) | |||
| 価格 | 3,490万円~3,690万円 | 間取り | 3LDK~4LDK |
| 販売戸数 | 3戸 | 総戸数 | 3戸 |
| 土地面積 | 105.00㎡~120.99㎡ | 建物面積 | 94.49~100.61㎡ |
| 道路 | 道路幅:東側5.6m北側5.0m | 完成予定 |
2026年1月予定 |

育児を応援する行政サービスガイド⇩
【新築戸建】厚木市上落合第1期 新築戸建:3棟-3号棟- 4LDK!駐車2台!についてのお問い合わせは、平日9時~18時(土・日・祝祭日定休)いつもで可能です。内覧につきましてはスタッフが現地をご案内しますので、お気軽にお問い合わせください。価格等、諸条件のご希望条件の交渉から購入のお申込み、ご契約条件の調整、売買契約、ローンをご利用される場合のローンのお申込みとローンのご契約、購入不動産の最終確認を行い、ご決済からお引渡しまでが滞りなく行われるようにサポートします。現地の見学希望・ご質問等は下記までお気軽にお問い合わせください。046-210-6555
★物件リクエスト受付中!

Loading...
※地図上に表示される物件の位置は付近住所に所在することを表すものであり、実際の物件所在地とは異なる場合がございます。
※物件掲載内容と現況に相違がある場合は現況を優先と致します。








