- 価格
- ご成約済
- 新築戸建
- 間取
- 4LDK
|
|
| 所在地 | 神奈川県伊勢原市高森6丁目 長期優良住宅 |
|---|---|
| 交通 | 小田急小田原線愛甲石田駅 徒歩17分 |
| 築年月 | 2026/03 | 新築/中古 | |
|---|---|---|---|
| 面積 | 計測方式 | ||
| バルコニー | 向き | ||
| 建物階数 | 地上2階 | 部屋階数 | |
| 部屋/区画番号 | 4号棟 | 総戸/区画数 | 2棟 |
| 建物構造 | 木造 | ||
| 敷地全体面積 | 156.20m² | 延べ床面積 | 98.32m² |
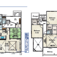
| 間取内容 |
LDK16.6畳 和室4.5畳 洋室7.0畳 洋室5.25畳 洋室5.25畳 +3WIC |
||
| 駐車場 | 並列2台(車種による) | 取引態様 | 仲介 |
| 引渡/入居時期 | 現況 | 未完成 | |
| 地目 | 宅地 | 用途地域 | 第一種中高層住居専用 |
| 都市計画 | 市街化区域 | 地勢 | 平坦 |
| 土地面積 | 156.20m² | 土地面積計測方式 | |
| 建ぺい率 | 60% | 容積率 | 200% |
| 土地権利 | 所有権 | 接道状況 | 一方 |
| 接道方向1 | 北 | 接道間口1 | |
| 接道種別1 | 公道 | 接道幅員1 | 8.9m |
| 周辺環境 |
緑台小学校800m 成瀬中学校900m マルエツ1200m クリエイト500m ローソン500m ヨークマート1200m |
||
| 設備・条件 | ガスコンロ 三口コンロ システムキッチン カウンターキッチン 食器洗い乾燥機 給湯 追い焚き 洗髪洗面化粧台 シャワー 浴室乾燥機 ユニットバス 温水洗浄便座 床下収納 W.INクローゼット TVドアホン 都市ガス 公営水道 排水下水 駐車場有 住宅性能評価書 建築確認番号:第R07SHC121928号 フラット35利用の場合は適合証明取得費用別途 長期優良住宅(減税・控除)玄関吹抜け 室内物干し 勾配天井 |
||
| 物件番号 | nh26012001 | 掲載期限日 | 2026/04/10 |
【伊勢原市高森6丁目・新築一戸建て】
☆★☆仲介手数料0円です★☆★
「アスシア・ホーム」では神奈川県内の新築一戸建てを仲介手数料無料でご紹介しております。削減できた費用は、家具・家電・お引越し費用等にご利用ください。下記ポータルサイト、住宅情報誌、他社様のHPなどからでも気になる物件をお知らせいただければ、仲介手数料無料でご紹介可能な物件かどうかをお調べの上、ご連絡いたします。046-210-6555

伊勢原市高森6丁目 《お勧めPoint!》
◎2026年3月上旬完成予定の新築戸建!
◎北側8.9m道路につき開放感あり!
◎キッチンにあると便利な床下収納!
◎家族が集まるLDKは広々16.62帖+続間和室4.5帖!
◎洗面所にも床下収納
◎リビングは折り上げ天井により開放感をプラス
◇緑台小学校・成瀬中学校区!◇
| 伊勢原市高森6丁目 | |||
| 価格 | 4,280万円 | 間取り | 4LDK+3WIC |
| 販売戸数 | 1戸 | 総戸数 | 2戸 |
| 土地面積 | 156.20㎡ | 建物面積 | 98.32㎡ |
| 道路 | 道路幅員:北側8.9m公道 | 完成予定 |
2026年3月上旬予定 |
育児を応援する行政サービスガイド⇩
【新築一戸建】小田急線「愛甲石田」徒歩17分◇伊勢原市高森6丁目◇4LDK+3WIC+カースペース並列2台駐車可!についてのお問い合わせは、平日 9時~18時(日曜日・祝際日定休)いつもで可能です。内覧につきましてはスタッフが現地をご案内しますので、お気軽にお問い合わせください。価格等、諸条件のご希望条件の交渉から購入のお申込み、ご契約条件の調整、売買契約、ローンをご利用される場合のローンのお申込みとローンのご契約、購入不動産の最終確認を行い、ご決済からお引渡しまでが滞りなく行われるようにサポートします。現地の見学希望・ご質問等は下記までお気軽にお問い合わせください。046-210-6555
★物件リクエスト受付中!











