- 価格
- 4,690万円
- 新築戸建
- 間取
- 4LDK
|
|
| 所在地 | 神奈川県厚木市妻田西2丁目 2期 |
|---|---|
| 交通 | 小田急小田原線本厚木駅 バス(中村入口 乗13分 停歩7分) |
| 築年月 | 2026/01 | 新築/中古 | 新築・未入居 |
|---|---|---|---|
| 面積 | 計測方式 | ||
| バルコニー | 向き | ||
| 建物階数 | 地上2階 | 部屋階数 | |
| 部屋/区画番号 | 1号棟 | 総戸/区画数 | 1棟 |
| 建物構造 | 木造 | ||
| 敷地全体面積 | 306.86m² | 延べ床面積 | 108.63m² |
| 間取内容 |
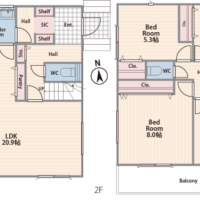
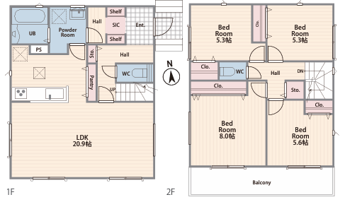
LDK20.9畳 洋室8.0畳 洋室5.6畳 洋室5.3畳 洋室5.3畳 |
||
| 駐車場 | 4台(車種による) | 取引態様 | 仲介 |
| 引渡/入居時期 | 現況 | 未完成 | |
| 地目 | 宅地 | 用途地域 | 第二種住居 |
| 都市計画 | 市街化区域 | 地勢 | 平坦 |
| 土地面積 | 306.86m² | 土地面積計測方式 | |
| 建ぺい率 | 60% | 容積率 | 200% |
| 土地権利 | 所有権 | 接道状況 | 二方(除角地) |
| 接道方向1 | 北 | 接道間口1 | 3.3m |
| 接道種別1 | 公道 | 接道幅員1 | 4.6m |
| 接道方向2 | 南 | 接道間口2 | 8.3m |
| 接道種別2 | 私道 | 接道幅員2 | 3.0m |
| 周辺環境 |
清水小学校550m 睦合東中学校1600m ヨークマート450m マックスバリュー1200m クリエイト900m ファミリーマート450m |
||
| 設備・条件 | ガスコンロ 三口コンロ システムキッチン カウンターキッチン 給湯 独立洗面台 浴室乾燥機 ユニットバス 温水洗浄便座 床下収納 TVドアホン プロパンガス 公営水道 排水下水 駐車場有 建築確認番号:第2KAK建確00422号 住宅省エネルギー性能証明書取得費用55,000円(税込)フラット35利用の場合は適合証明取得費用132,000円(税込)土地92.82坪 南側私道持分なし |
||
| 物件番号 | nh26012902 | 掲載期限日 | 2026/03/10 |
【厚木市妻田西2丁目・新築一戸建て】
☆★☆仲介手数料0円です★☆★
「アスシア・ホーム」では神奈川県内の新築一戸建てを仲介手数料無料でご紹介しております。削減できた費用は、家具・家電・お引越し費用等にご利用ください。下記ポータルサイト、住宅情報誌、他社様のHPなどからでも気になる物件をお知らせいただければ、仲介手数料無料でご紹介可能な物件かどうかをお調べの上、ご連絡いたします。046-210-6555

厚木市妻田西2丁目 南北2面道路 《お勧めPoint!》
◎2026年1月下旬完成予定の新築戸建!
◎小田急小田原線「本厚木駅」バス13分停徒歩7分
◎カースペース4台可!
◎家族が集まるLDKは広々20.9帖
◎主寝室は広々8.0帖
◎豊富な設備、システムキッチン パントリー
ユニットバス ミラブルzero・ミラバス搭載
シャワートイレ
TVモニター付インターホン
全居室ペアガラス
◇清水小学校・睦合東中学校区!◇
| 厚木市妻田西2丁目南北2面道路 | |||
| 価格 | 4,690万円 | 間取り | 4LDK+パントリー+SIC |
| 販売戸数 | 1戸 | 総戸数 | 1戸 |
| 土地面積 | 306.86㎡ | 建物面積 | 108.68㎡ |
| 道路 | 道路幅:南側3.0私道 北側4.6mアスファルト舗装公道 | 完成予定 |
2026年1月下旬予定 |
育児を応援する行政サービスガイド⇩
【新築一戸建て】厚木市妻田西2丁目南北2面道路◇本厚木駅バス13分停徒歩7分!4LDK+パントリー+SIC+4台駐車可!についてのお問い合わせは、平日 9時~18時(土・日・祝祭日定休)いつもで可能です。内覧につきましてはスタッフが現地をご案内しますので、お気軽にお問い合わせください。価格等、諸条件のご希望条件の交渉から購入のお申込み、ご契約条件の調整、売買契約、ローンをご利用される場合のローンのお申込みとローンのご契約、購入不動産の最終確認を行い、ご決済からお引渡しまでが滞りなく行われるようにサポートします。現地の見学希望・ご質問等は下記までお気軽にお問い合わせください。046-210-6555
★物件リクエスト受付中!












