- 価格
- 4,180万円
- 新築戸建
- 間取
- 4LDK
|
|
| 所在地 | 神奈川県厚木市戸室4丁目 5期 |
|---|---|
| 交通 | 小田急小田原線本厚木駅 バス(戸室 乗14分 停歩7分) |
| 築年月 | 2026/01 | 新築/中古 | 新築・未入居 |
|---|---|---|---|
| 面積 | 計測方式 | ||
| バルコニー | 向き | ||
| 建物階数 | 地上2階 | 部屋階数 | |
| 部屋/区画番号 | 2号棟 | 総戸/区画数 | 2棟 |
| 建物構造 | 木造 | ||
| 敷地全体面積 | 110.34m² | 延べ床面積 | 93.15m² |
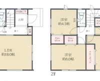
| 間取内容 |
LDK18.0畳 洋室6.5畳 洋室6.0畳 洋室4.5畳 洋室4.25畳 |
||
| 駐車場 | 並列2台(車種による) | 取引態様 | 仲介 |
| 引渡/入居時期 | 現況 | ||
| 地目 | 宅地 | 用途地域 | 第一種中高層住居専用 |
| 都市計画 | 市街化区域 | 地勢 | 平坦 |
| 土地面積 | 110.34m² | 土地面積計測方式 | |
| 建ぺい率 | 60% | 容積率 | 162% |
| 土地権利 | 所有権 | 接道状況 | 一方 |
| 接道方向1 | 北東 | 接道間口1 | 8.5m |
| 接道種別1 | 公道 | 接道幅員1 | 4.0m |
| 周辺環境 |
戸室小学校400m 南毛利中学校1500m |
||
| 設備・条件 | ガスコンロ 三口コンロ システムキッチン カウンターキッチン 給湯 洗髪洗面化粧台 独立洗面台 ユニットバス バス・トイレ別 温水洗浄便座 エアコン 床下収納 TVドアホン プロパンガス 公営水道 排水下水 駐車場有 建築確認番号:第HPA-25-13518-1号 法令制限:準防火地域・景観法・日影制限4h-2.5h/4m・宅地造成等工事規制区域 宅地面積には路地状部分約33㎡を含む フラット35利用の場合は適合証明取得費用93,500円(税込)が必要となります。 |
||
| 物件番号 | nh26020601 | 掲載期限日 | 2026/03/10 |
【新築一戸建】厚木市戸室4丁目-全2棟-2号棟◆◇全区画約33坪 4LDK◇カースペース並列2台!地震に強い家!の物件詳細です。その他の物件情報も多数取り揃えています。神奈川県・東京都の不動産。厚木市・伊勢原市・海老名市・座間市・相模原市・町田市・大和市・藤沢市・横浜市・八王子市を中心とした新築・一戸建て・マンション・土地の不動産仲介はアスシア・ホームにおまかせください。
アスシア・ホームでは神奈川県内の新築一戸建てを仲介手数料無料でご紹介しております。削減できた費用は、家具・家電・お引越し費用等にご利用ください。ポータルサイト、住宅情報誌、他社様のHPなどからでも気になる物件をお知らせいただければ、仲介手数料無料でご紹介可能な物件かどうかをお調べの上、ご連絡いたします。046-210-6555
仲介手数料が無料の判定は簡単!物件リクエストにURLか画像を送るだけ!
他の不動産会社ホームページやSUUMO・HOME’S・at homeなどのサービスで見つけた、気になる新築一戸建てがあれば、ぜひご連絡ください。仲介手数料無料可能かをすぐにお調べ致します。
他サイトのスクリーンショットやポストに入ったチラシでも、物件の情報だけでも大丈夫!すぐにスタッフよりご返信します!

厚木市戸室4丁目 2号棟《お勧めPoint!》
◎小田急小田原線「本厚木」駅 バス13分 停 徒歩8分
◎カースペース並列2台駐車可(車種による)
◎全居室収納付!
◎LDKは広々18.0帖!
◎主寝室は6.5帖!
◎設備充実、べた基礎
システムキッチン
浴室暖房換気乾燥機
カースペース並列2台
1坪タイプシステムバス
TVドアホン
シャワートイレ
シャンプードレッサー
複層ガラスサッシ
| 厚木市戸室4丁目-全2棟 | |||
| 価格 | 3,880万円~4,180万円 | 間取り | 3LDK~4LDK |
| 販売戸数 | 2戸 | 総戸数 | 2戸 |
| 土地面積 | 110.34㎡~127.81㎡ | 建物面積 | 93.15㎡~94.60㎡ |
| 道路 | 道路幅 北東側4.0m |
完成 | 2026年1月下旬完成予定 |

◇戸室小学校・南毛利中学校区◇
◎ 厚木市では「子育て教育環境日本一」を目指して、「紙おむつ等の支給」、「中学生まで医療費無償」などの支援メニューを数多くそろえています。
共働きしながら子育てしやすい街として全国トップクラスの評価をいただいています。
下記⇩のバナーをクリックしご確認ください♪
【新築一戸建】厚木市戸室4丁目-全2棟-2号棟◆◇土地約33坪超 4LDK◇カースペース並列2台!地震に強い家!についてのお問い合わせは、平日09:00~18:00(土・日・祝祭日定休)いつもで可能です。内覧につきましてはスタッフが現地をご案内しますので、お気軽にお問い合わせください。価格等、諸条件のご希望条件の交渉から購入のお申込み、ご契約条件の調整、売買契約、ローンをご利用される場合のローンのお申込みとローンのご契約、購入不動産の最終確認を行い、ご決済からお引渡しまでが滞りなく行われるようにサポートします。
【新築一戸建】厚木市戸室4目-全2棟-2号棟◆◇土地約33坪超 4LDK◇カースペース並列2台!地震に強い家!をご覧いただき、誠にありがとうございます。現地の見学希望・ご質問等は下記までお気軽にお問い合わせください。046-210-6555
★物件リクエストもお待ちしております。
![]()











